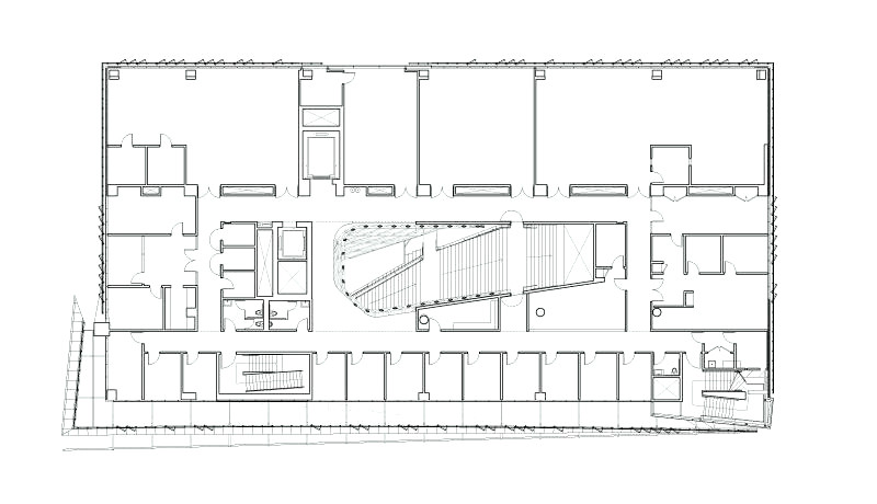
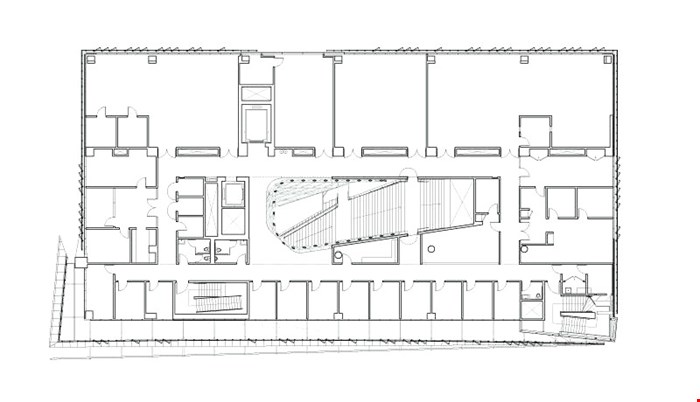
این پروژه طراحی فنی ساختمان مدرسه فاز ۲ شده شامل یک عدد فایل اتوکد است که به طور کل شامل پلان ، نما، برش ، جزئیات ، بام ، نعل درگاهی و سقف کاذب می باشد. تمام بخشها به صورت کامل و با دیتیل(دتایل!) و جزئیات فنی در نقشه اتوکد پیاده سازی شده و پروژه معماری با افتخار با قیمتی ناچیز در اختیار همه معماران عزیز قرار داده است .
پاورپوینت اجرای غیر اصولی عملیات نازک کاری و تاسیسات برقی مکانیکی در پروژه ها ی ساختمانی7,0000
تومان
مقاله آسيب به تاسيسات برقي و عمليات ترميم آن پس از وقوع زلزله7,0000
تومان
پاورپوینت پانل های پخشاینده صدا7,0000
تومان
پروژه تاسیسات الکتریکی در ساختمان29 اسلاید8,0000
تومان
جزوه تاسیسات ساختمانی(تاسیسات الکتریکی و تاسیسات مکانیکی)5,0000
تومان
نقشه مجتمع مسکونی – ۵۰ شیت کامل – پلان,نما,برش,نازک کاری,جزئیات عمومی و سازه و…15,0000
تومان
نقشه اتوکدی ساختمان ۳ طبقه مسکونی + پرسپکتیو ساختمان – نقشه ساختمان ۳ طبقه8,0000
تومان
نقشه هنرستان معماری { نقشه مدرسه معماری }8,0000
تومان
پروژه فاز ۲ و اجرایی مجتمع مسکونی تجاری ۶ طبقه – نقشه فاز ۲30,0000
تومان
پروژه طراحی فنی ساختمان – نقشه فاز ۲ ساختمان مسکونی ۳ طبقه16,0000
تومان


